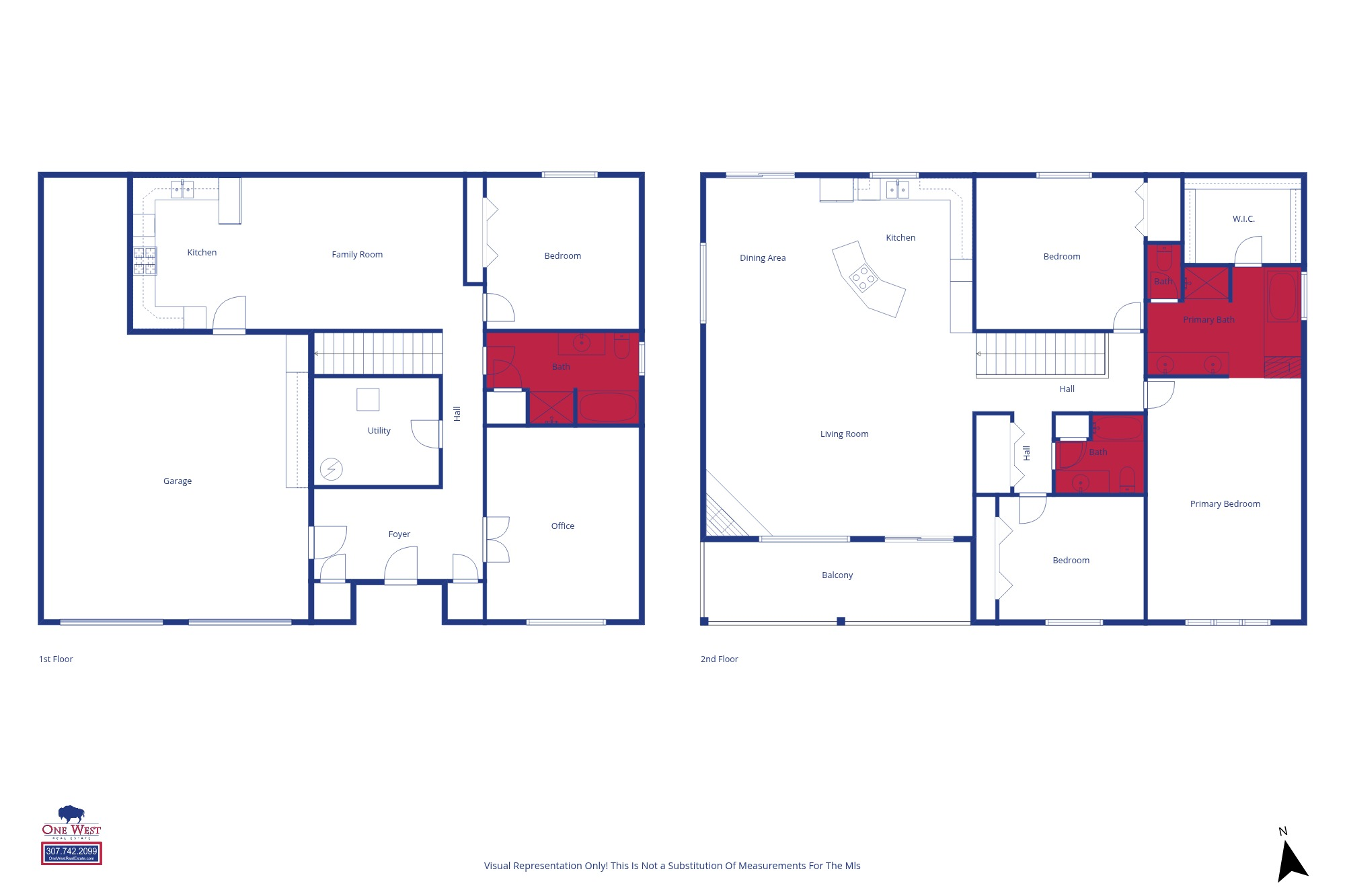
2434 Foothills Rd, Cheyenne, WY 82009
Toggle Navigation
Images
Floor Plans
3D Tour
Map
2434 Foothills Rd
Cheyenne, WY 82009
Scroll to Content
Images
Slideshow
Photo Grid
Hide
Previous
Next
Show more
Floor Plans
Slideshow
Photo Grid
Hide
Previous
Next
3D Tour
Content Coming Soon