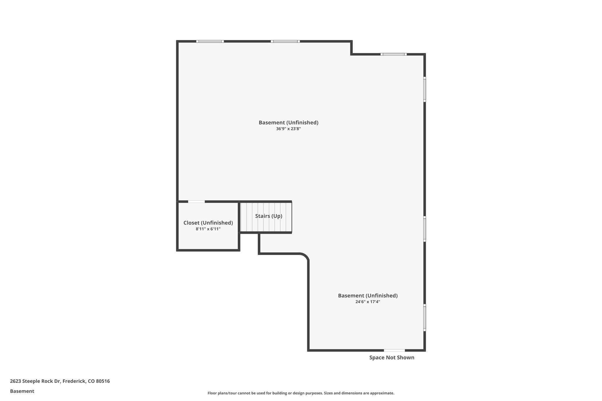
Basement
Floor 1
Floor 2
Combined
Basement
Floor 1
Floor 2
Combined